Neues von der Cluster-Wohnung
29.03.2026
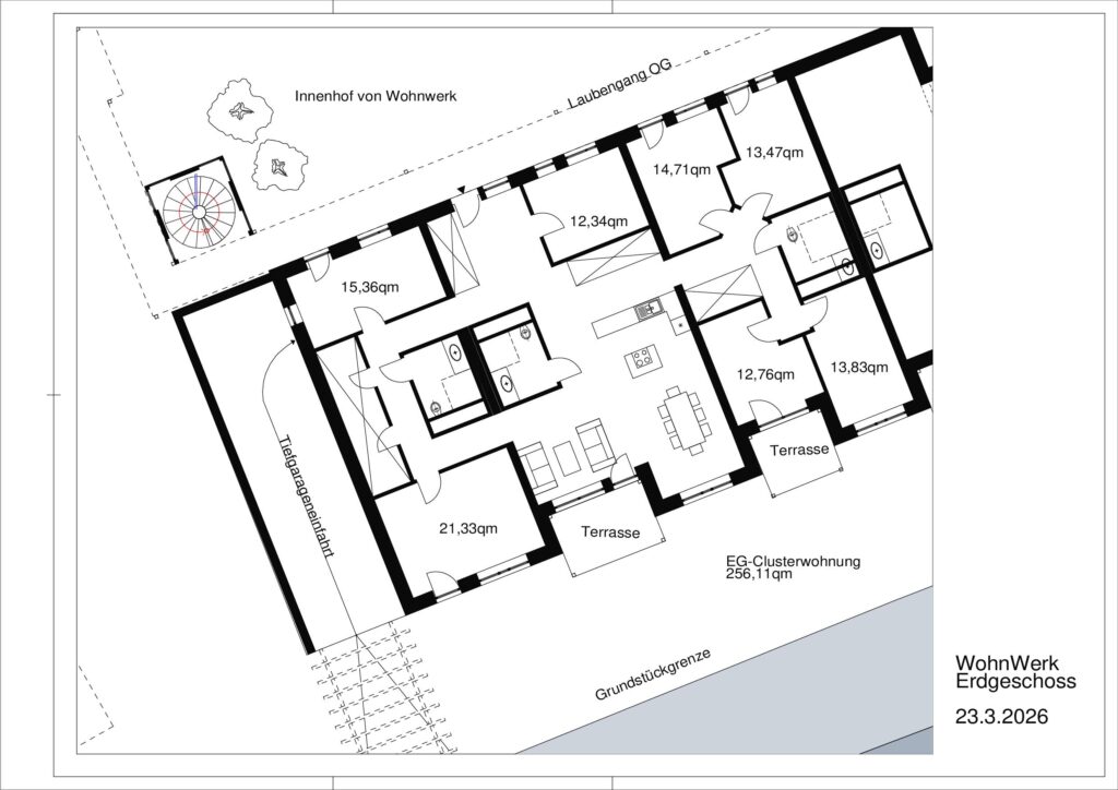
Unsere Pläne haben sich jetzt weiter konkretisiert. Da wir uns entschieden haben, nun doch eine Tiefgarage zu bauen, kann die Terrasse für die Cluster-Wohnung nicht mehr gen Westen gehen. Deshalb haben unsere Architekt:innen den Cluster neu sortiert. Und das ist das Ergebnis:

Die gemeinschaftliche Küche mit Esszimmer und Wohnzimmer + Südterasse liegt nun zentral in der Mitte. Darum herum gruppieren sich insgesamt 7 private Zimmer (eines davon mit Südterasse), 3 Bäder (eines davon rollstuhlgerecht), 1 großer Abstellraum und Platz für 3 Einbauschränke.
Jetzt fehlen uns nur noch die Menschen, die diesen Cluster mit Leben füllen wollen. Engagierte Leute mit Ideen und Lust am Aufbau einer Wohngemeinschaft. Ihr müst nicht zu siebt sein! Für den Anfang reichen zwei oder drei Menschen, die sich mit uns auf den Weg machen, diesen Cluster weiter zu planen.
Mails an: kontakt@wohnwerk-bonn.de
Wir suchen engagierte Menschen für unsere Clusterwohnung!
01.03.2026
In unserem Wohnprojekt wollen wir neben den 30 individuellen Wohnungen und der WohnPflegeGemeinschaft auch eine Gruppenwohnung etablieren – eine Clusterwohnung. Wir denken da an Menschen, die gerne mit anderen zusammen in einer kleinen Gemeinschaft leben wollen. Für den Aufbau eines solchen Clusters suchen wir ein oder zwei oder drei (?) Menschen, die eine solche Wohngemeinschaft mit uns planen und aufbauen möchten.
Vorgesehen dafür ist eine insgesamt 230 qm große Wohnfläche mit 7 Einzelzimmern, 3 Bädern, 3 Abstellräumen nebst großen Gemeinschaftsräumen: Küche, Esszimmer, Wohnzimmer, WC.
Wenn du große Lust hast, in einer Wohngemeinschaft zu leben und vielleicht sogar schon eine Idee, ein Konzept für ein gemeinsames Wohnen im Kopf hast, dann melde dich bei uns. Wir planen gerade das Haus und wollen in diesem Jahr noch den Bauantrag ein.
Mail an: kontakt@wohnwerk-bonn.de

Freude!
21.10.2025
Wir haben es tatsächlich geschafft!
Auf dem Grundstück der Ev. Thomas-Kirchengemeinde an der Kennedyallee 113 in Bonn-Bad Godesberg wird unser Mehrgenerationen-Wohnprojekt endlich Wirklichkeit.
Wir planen ein 3-geschossiges Gebäude in modularer Holzbauweise mit Solarpanels für unsere Energieversorgung. Insgesamt werden es 47 Wohneinheiten: 10 Appartements in der WohnPflegeGemeinschaft, 30 individuelle Wohnungen von 45 – 110 qm und eine Clusterwohnung für 7 Menschen. Dazu zwei Gemeinschaftsräume, zwei Gästezimmer, ein Waschcafé, ein Homeoffice und einen großen Fahrradkeller. Und eigentlich wollen wir keine Tiefgarage bauen – aber das ist noch nicht entschieden. Sicher ist, dass wir so viel wie möglich teilen wollen: Autos, Waschmaschinen, Zeit und was uns sonst noch einfällt.
Wenn du genossenschaftlich wohnen möchtest und große Lust hast, ein solches Projekt mit aufzubauen, dann komm zu uns! Wir legen unser Geld zusammen, bauen gemeinsam ein Haus mit dauerhaft bezahlbaren Mieten und toller Nachbarschaft – und das auch noch nachhaltig und in Schön.
Save the Date: Sonntag, den 16. November 2025, 15.00 Uhr, InfoCafé im Gemeindesaal der Christuskirche, Wurzerstr. 31 in 53175 Bonn – Bad Godesberg, Plittersdorf

Auf die andere Rheinseite
01.02.2025
Seit 2014 planen wir ein genossenschaftliches Wohnprojekt für Mehrgenerationenwohnen mit integrierter Wohn-Pflege-Gemeinschaft. Ein Wohnprojekt also, in dem Menschen von ganz jung bis ganz alt zusammen leben können, auch wenn sie umfangreiche professionelle pflegerische Unterstützung brauchen. 2014/16 und dann in einem zweiten Anlauf 2020/22 sah es so aus, als könnten wir unser Projekt auf einem dafür vorgesehenen Grundstück in Bonn-Beuel, Vilich-Müldorf, umsetzen. Unsere Pläne sind längst baureif, allein – bis heute konnte die Stadt Bonn im Wohnpark II kein Baurecht schaffen. Ende offen.
Jetzt hat sich für uns eine realistische Alternative eröffnet. Die evangelische Thomasgemeinde in Bonn, Bad Godesberg, bietet ihr Grundstück in Plittersdorf zur Erbpacht an. In einem Konzeptverfahren sucht sie ein „gemeinschaftliches, innovatives und zukunftsfähiges Wohnprojekt“ für das Thomaskapellengelände. Das ca. 4.300 qm große Grundstück an der Kennedyallee bietet beste Voraussetzungen für unser Projekt. Dort wollen wir als zweite Hausgemeinschaft der Mühlenbach eG endlich inklusiv bauen und wohnen. Wir würden uns dort sogar vergrößern können! Das sind gute Perspektiven. Wir haben uns deshalb auf die Ausschreibung beworben, um hoffentlich in Plittersdorf dauerhaft bezahlbare Wohnungen für Familien, Wohngemeinschaften, Paare und Singles zu schaffen.

Mitmacher:innen gesucht
13.04.2022
Wir sind 25 engagierte Menschen von 2 bis 81 Jahren und wir werden zusammen ein Haus bauen mit insgesamt 17 individuellen Wohnungen. Dazu einen großen Gemeinschaftsraum, ein Büro, ein Gästezimmer und eine Fahrradgarage. Und das Wichtigste: Eine WohnPflege-WG für Menschen, die nicht mehr allein in ihrer Wohnung leben können, weil ihr täglicher Hilfebedarf hoch ist. Aber in ein Pflegeheim müssen sie deshalb nicht – sie bleiben in unserer Nachbarschaft.
Das ist unser Traum. Und er ist aller Mühe wert. Aktuell arbeiten wir intensiv mit unseren Architekt:innen am Bauantrag für ein Grundstück in Vilich-Müldorf in Bonn Beuel. Wir finden gemeinsam Antworten auf die vielen kleinen Fragen der Bauplanung. Wie viele Kellerräume brauchen wir? Wo kommen unsere Fahrräder zu stehen? Passivhaus? Mit zusätzlicher Heizung oder ohne? Wie viele Autos teilen wir uns? Und können wir vielleicht sogar mit anderen Wohnprojekten in der Nachbarschaft eine gemeinsame Energieversorgung auf den Weg bringen?
Für unsere Aufbauarbeit und unser zukünftiges gemeinschaftliches Wohnen suchen wir noch Menschen, die Lust haben mitzumachen. Bist du interessiert? Dann schreib uns eine Mail mit einer Kurzvorstellung an kontakt@wohnwerk-bonn.de


